Ing. Jiří Menšík
Projektant TZB Praha
Projektant TZB na volné noze se specializací na vzduchotechniku pro občanské, komerční a školské stavby. Nabízím zpracování projektové dokumentace ve stupních DSP a DPS. Spolupracuji s dalšími profesemi TZB a zajišťuji komplexní řešení.

Nabídka služeb
Projektová dokumentace DPS
Nejpodrobnější prováděcí dokumentace pro realizaci stavby — detailní technické řešení, specifikace materiálů, přesné výkazy výměr. Nezbytná pro hladký průběh stavby.
Vzduchotechnika a klimatizace
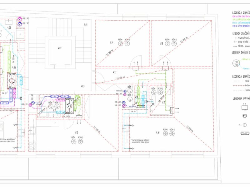
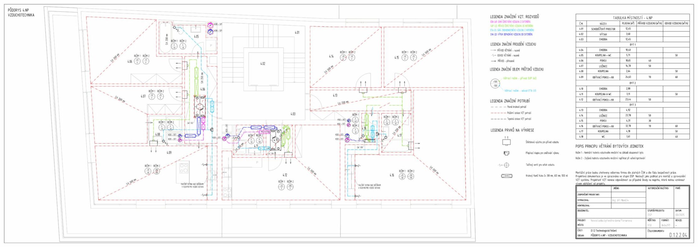
Kompletní návrh větracích a klimatizačních systémů pro občanské, komerční a školské stavby. Řeším energeticky úsporná řešení s důrazem na kvalitu vnitřního prostředí.
Konzultace a poradenství
Potřebujete poradit s technickým řešením TZB? Nabízím nezávazné konzultace a odborné posouzení stávajícího stavu. Pomohu vám vybrat optimální řešení pro váš projekt.
Jak spolupráce probíhá
Nezávazná konzultace
Popíšete mi svůj projekt — typ stavby, rozsah, termíny. Zdarma vám sdělím orientační cenu a termín zpracování.
Podklady a zadání
Dodáte mi stavební výkresy (půdorysy, řezy) a případné požadavky investora. Čím lepší podklady, tím přesnější projekt.
Zpracování projektu
Vytvořím kompletní projektovou dokumentaci TZB včetně technické zprávy, výkresů a výpočtů. Průběžně vás informuji o postupu.
Předání a podpora
Projekt předám v dohodnutém termínu v digitální i tištěné podobě. V případě dotazů ze strany úřadů nebo stavbyvedoucího jsem k dispozici.
Recenze
Určitě mohu pana Menšíka s klidným srdcem doporučit. Domluvená práce a veškeré vyhotovení proběhlo do smluveného termínu a vše bylo v naprostém pořádku. Zodpovědných projektantů je dnes opravdu málo a pan Ing. Menšík mezi ně bezpochyby patří. Děkuji za spolupráci.
Profesionální přístup a precizní zpracování projektové dokumentace. Pan Menšík mi pomohl s projektem vzduchotechniky pro rekonstrukci bytového domu a vše proběhlo bez problémů. Dokumentace byla přehledná a stavební úřad ji schválil bez připomínek.
Spolupracovali jsme na projektu větrání mateřské školy. Pan Menšík navrhl energeticky úsporné řešení s rekuperací, které splnilo všechny hygienické normy. Komunikace byla výborná, termín dodržen. Jednoznačně doporučuji.
O mně

Vystudoval jsem fakultu stavební VŠB-TUO (Ing.) obor Prostředí staveb. Profesní zkušenosti jsem získal ve společnostech Atrea s.r.o a Capexus s.r.o., kde jsem se specializoval na návrh vzduchotechnických systémů pro komerční a veřejné budovy.
Mám přes 4 roky zkušeností s projektováním technického zařízení budov, zejména vzduchotechniky. Za sebou mám více než 70 zpracovaných projektů — od rodinných domů přes bytové domy až po mateřské školy a kancelářské prostory.
Spolupracuji s architekty, stavebními firmami i projektanty napříč celou ČR. Sídlím v Praze, odkud projektuji pro klienty z celé republiky. Kladu důraz na dodržování termínů, přehlednou dokumentaci a osobní přístup ke každému projektu.
- VŠB-TUO, Fakulta stavební (Ing.)
- Obor Prostředí staveb
- Autorizace ČKAIT (příprava)
- 70+ dokončených projektů
- 4+ roky praxe v oboru TZB
Ceník
Projektant TZB Praha
Otevírací doba
- Pondělí
- 09:00 — 17:00
- Úterý
- 09:00 — 17:00
- Středa
- 09:00 — 17:00
- Čtvrtek
- 09:00 — 17:00
- Pátek
- 09:00 — 17:00
- Sobota
- Zavřeno
- Neděle
- Zavřeno
Kontakt
Potřebujete projekt vzduchotechniky nebo topení? Pojďme to nezávazně probrat. Napište mi, odpovím do 2 pracovních dnů.
Rychlá zpráva
Kontaktujte mě
V pracovní dny mezi 9:00-16:00





